Directions to the Conference Venue
From domestic/downtown Bombay
Take Western Express highway North-bound (towards Andheri/Borivali), make a right at Jogeshwari link-road (under the flyover), drive for about 6 km, IIT Bombay is just after you see a large lake (Powai lake) on your left. Enter the main gate and then follow instructions to F. C. Kohli/KReSIT.From international airport
Take the exit that says towards Andheri Saki naka. Make a right (second traffic light) near Leela hotel. This will take you on to Andheri Kurla Road. Make a left at Saki naka (second traffic flight), follow the road for about 2.5 km. Make a right at the first traffic light after you pass below a bridge. IIT Bombay is just after the lake that you will see on your left. Make a left into IIT main gate and follow directions to F.C. Kohli/KReSIT.
From Central/Eastern suburbs
Take Eastern Express highway North bound. After crossing Ghatkopar take the second exit which says "Powai/Andheri". After 1 km the road winds up on a hill in form of a semi-circle. Once at the top of the hill IIT Bombay appears to your right hand side. Take the second entrance (main gate) and follow directions to F. C. Kohli/KReSIT.Reaching the conference venue once you are at IIT Bombay
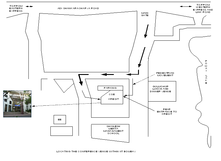
IIT Bombay has three points of entrance (main gate, market gate also called Y-point gate and lake-side gate). Please use maingate for entrance into IIT Bombay, as the security will likely issue you a gate-pass for your laptop. From the main gate take the road that goes towards the academic area. You will see India Telco 2013 signs on the way. After about 450 meters you will see a large board that says India Telco 2013. Follow this board into the rear side exit of KReSIT building. Registration desks are set up at the front side.Note on security arrangements
We have hired private security contractors who will allow only registered attendees.Also please note that all those who register on-the-spot will have to present a federal photo identification i.e. issued by Govt of India or respective Govt. Passport/driver's license are valid forms of identification.
Location of Conference Venue within IIT Bombay








